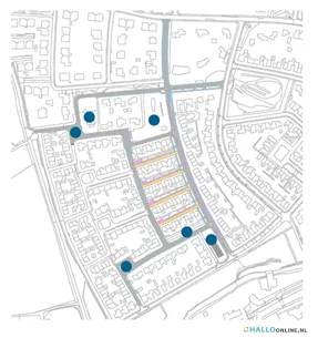
De gemeente Leudal heeft de wegen in de gehele gemeente laten inspecteren. Tijdens deze inspectie is geconstateerd dat de kwaliteit van de asfaltverhardingen in uw buurt dusdanig slecht is dat deze aan vervanging toe is. Daarom is ervoor gekozen om diverse straten te reconstrueren. De straten zijn in onderstaande prent gearceerd aangegeven.
De gemeente zet zich in om zo veel mogelijk regenwater van de riolering af te koppelen. Meer informatie over hoe u zelf uw regenwater kunt afkoppelen en de projecten waar omliggende Midden-Limburgse gemeenten mee bezig zijn kunt u vinden op de website www.waterklaar.nl.
Op dit moment heeft de gemeente ook een stimuleringsregeling vastgesteld om hemelwater af te koppelen van de riolering. Als u op uw eigen perceel hemelwater van uw dak opvangt en ter plekke hergebruikt of infiltreert in de bodem, dan kunt u in aanmerking komen voor een subsidie van € 9,- per afgekoppelde vierkante meter. Lees hier meer over de subsidie afkoppelen hemelwater.
Planning en stand van zaken
Vanaf eind mei 2018 zijn er diverse onderzoeken in de buurt.
De volgende onderzoeken zijn uitgevoerd.
- Grond- en funderingsonderzoek;
- Infiltratie onderzoek;
- Inmeten bestaande situatie;
- Filmen van de hoofdrioleringen;
- Asfaltonderzoek door middel van boringen.
- Een voorlopig ontwerp is begin juli 2018 opgesteld.
- Uitwerken onderzoeken en vertalen resultaten naar onderhoudsmaatregelen; deze worden verwerkt in het voorlopig ontwerp. Dit ontwerp is op woensdag 11 juli 2018 op de bewonersavond gepresenteerd. In de bijlage staat het voorlopig ontwerp inclusief aanpassingen en opmerkingen die door de aanwezige zijn gemaakt.
- Na de bewonersavond worden het definitief ontwerp opgesteld, hierin zijn de op- en aanmerkingen van de bewonersavond verwerkt.
- Het definitief ontwerp wordt in september/oktober 2018 vertaald naar technische tekeningen en een bestek (werkomschrijving).
- Het werk wordt begin november 2018 aanbesteed.
- De daadwerkelijke reconstructie wordt gefaseerd vanaf begin maart tot begin oktober 2019 uitgevoerd.
Werkzaamheden derden (Nutsbedrijven)
Vanaf 13 augustus 2018 wordt in de gehele buurt de hoofdleiding van het water inclusief de huisaansluitingen van het water en gas vervangen. Over deze werkzaamheden informeert de Watermaatschappij Limburg en Enexis u rechtstreeks.
De contactpersoon van de gemeente hiervoor is de Patrick Sanders. Hij is bereikbaar via (0475) 85 90 00 of via p.sanders@leudal.nl.
Tot slot
Heeft u nog vragen? Neem dan gerust contact op met John Janssen via j.janssen@leudal.nl of via (0475) 85 90 00.
