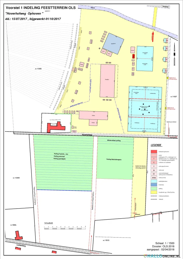
KINROOI: Ruim tweeëneenhalve maand voor aanvang van het grootste volksfeest van beide Limburgen heeft de OLS-werkgroep Terrein & Techniek de laatste hand gelegd aan de plattegrond van het feestterrein.
Centraal gelegen op het terrein vind je de feesttent, met aan de westzijde de 42 schietbomen. Aan de oostelijke kant van de weide zijn de verschillende exercitieterreinen ingeplant.
Noordelijk bevindt zich het kinderdorp en de frituren, en aan de zuidzijde kunnen de hongerigen nieuwe krachten opdoen in de eettent.Sanitair, units voor bonnenverkoop en diverse units voor dienstverlenende medewerkers staan op diverse plekken verspreid op de feestweide.
Parkeermogelijkheden voor personenwagens (5915 plaatsen totaal) en minder-validen liggen ten zuiden van het feestterrein. Bussen en fietsers kunnen ten noorden hun voertuigen stallen.
Op 16 mei starten de werkzaamheden op de terreinen. De Stuurgroep OLS 2018, de verschillende werkgroepen en tal van vrijwilligers zijn er klaar voor. Wij hopen alvast op een massale opkomst op zondag 1 juli voor het Oud Limburgs Schuttersfeest 2018!
Contact – OLS-secretariaat: Weertersteenweg 363 bus 1 l 3640 Kinrooi l 089/300840 l secretariaat@ols2018.eu l www.OLS2018.eu
