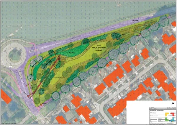
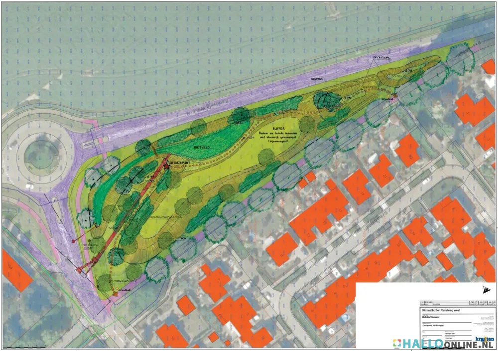
In de week van 8 februari start de aanleg van een waterbuffer op de hoek Randweg West-Molenweg.
Waterbuffer
Als het hard regent, voeren we veel relatief schoon water via het riool af naar het buitengebied. Door buffers aan te leggen, ook wel klimaatbuffers genoemd, houden we dat water eerder vast. Zo kan water sneller in de bodem zakken. Dit is belangrijk in verband met de langere periodes van droogte. Bij de Molenweg aan de rand van Nederweert leggen we zo’n klimaatbuffer aan. Het is niet de eerste keer dat we dat doen. Aan de rand van Nederweert-Eind ligt al enkele jaren een waterbuffer.
Afsluiting
Het werk begint met het afgraven van de bovenlaag en met een archeologisch onderzoek. Tijdens het project wordt ook aan het riool gewerkt. De aansluiting van de Molenweg op de Randweg West is dan tijdelijk afgesloten voor gemotoriseerd verkeer. Houd de komende weken rekening met een omleiding.
Boomleerpad
In aanloop naar de werkzaamheden is gesproken met omwonenden over het nut en noodzaak van de buffer en waarom juist deze locatie gekozen is. Er is extra aandacht gevraagd voor het groen. Er komt onder meer een bomenleerpad.
